O camuflado serviu, ao longo da história da humanidade, para garantir o sucesso na caça (ou na guerra): "ver sem ser visto". E isso foi posto em prática tanto na roupa como nos abrigos.
Na verdade, tanto o design da moda como o das habitações foram, por vezes, buscar muitas ideias ao camuflado. É o caso do estúdio Kim-oflage, situado num jardim particular em Londres, onde se utilizaram azulejos verdes para o camuflar.
Um estúdio camuflado com azulejos vidrados
O projeto foi desenvolvido pelo estúdio Delve Architects, que utilizou estes azulejos verdes vidrados para camuflar o exterior do estúdio entre as árvores e arbustos que compõem o jardim dos clientes.
O nome do projeto, Kim-oflage, resulta de uma curiosa combinação entre os nomes dos clientes, Kit e Imogen, e a palavra camuflagem.
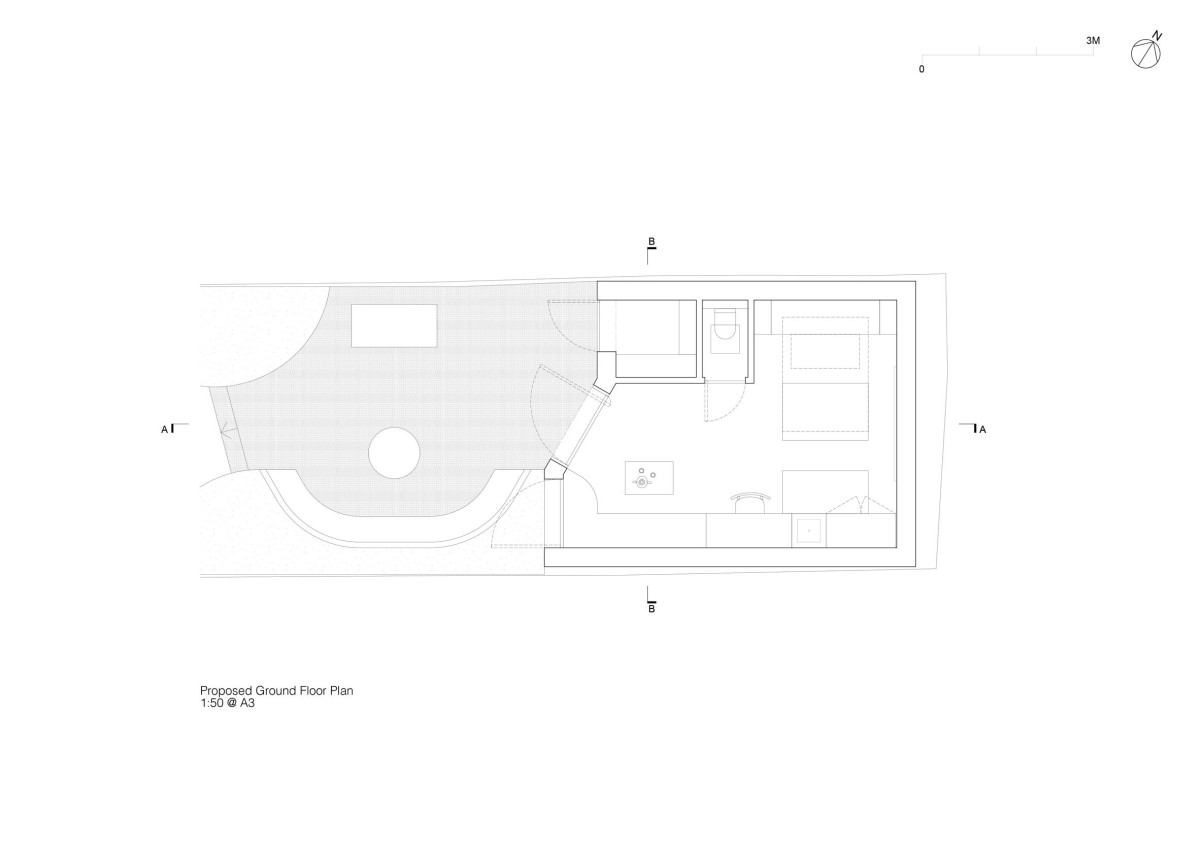
O estúdio conta com 25 metros quadrados, que se somam a um terraço vitoriano de Nunhead, já ampliado pelo próprio estúdio em 2020. Desta vez, volta-se a imitar a forma da primeira ampliação, mas o revestimento foi completamente alterado.
Se em 2020 foi feito em madeira preta, desta vez são utilizados azulejos verdes brilhantes e caixilharias em verde escuro.
Com esta ideia, procurou-se que o novo edifício não sufocasse este espaço exterior. Segundo afirmam no estúdio, “dada a largura e o confinamento do terreno no final do jardim, com vizinhos de ambos os lados, o nosso objetivo era reduzir o volume visual com um telhado de duas águas e uma fachada de azulejos verdes que se fundisse com o jardim”.
Para isso, promoveram uma ligação entre a própria casa e o jardim, ajudando a que se fundisse com o ambiente e proporcionasse um bom espaço para trabalho, relaxamento e lazer.
O estúdio foi concebido “para ser desfrutado tanto por dentro como por fora, e a sua presença no jardim revela-se gradualmente à medida que nos aproximamos, criando uma jóia escondida na parte de trás do jardim”, comentam na Delve Architects.
Dois espaços distintos separados com elegância
Apesar das suas dimensões reduzidas, com 25 metros quadrados, o interior do estúdio está dividido em duas zonas. A parte traseira, iluminada por duas claraboias, conta com uma secretária e uma cama dobrável para os convidados; enquanto na parte da frente se encontra uma kitchenette e uma janela com vista para um pátio pavimentado com tijolos, ao qual se acede através de uma grande porta de vidro.
Para diferenciar as duas zonas, o estúdio usou acabamentos nas paredes com um contraste subtil. Assim, as paredes da zona de trabalho e do quarto foram pintadas de branco, enquanto a da cozinha é uma parede de gesso rosa pálido.
Além destes dois espaços distintos, no lado norte do estúdio existe uma pequena casa de banho junto a uma área de arrumação, à qual se acede a partir do jardim através de uma porta escondida pelas azulejos verdes.
Por isso, o espaço está muito bem aproveitado, segundo afirma o estúdio: “de perto, podem ver-se as ideias engenhosas para poupar espaço, como o arrumo oculto no jardim e a cama rebatível, que mantêm a estética limpa e prática do estúdio”.
Acompanha toda a informação imobiliária e os relatórios de dados mais atuais nas nossas newsletters diária e semanal. Também podes acompanhar o mercado imobiliário de luxo com a nossa newsletter mensal de luxo.







Para poder comentar deves entrar na tua conta